5 locali in affitto

Torino, Via Isonzo - San Paolo Monginevro
€ 863 / mese
5 locali 5 locali
130 Mq 130 Mq
2 bagni 2 bagni

5 locali in affitto

Torino, Via Isonzo - San Paolo Monginevro

Descrizione annuncio

In Via Isonzo -Zona San Paolo

€863+200

IN AFFITTO PER LAVORATORI CON BUONE GARANZIE. LIBERO DA GENNAIO

Nelle vicinanze di Corso Peschiera e di numerose attività commerciali e mezzi di trasporto pubblico proponiamo in affitto un ampio e luminoso appartamento situato all’ultimo piano di uno stabile di recente costruzione, privo di barriere architettoniche e dotato di un curato giardino condominiale.

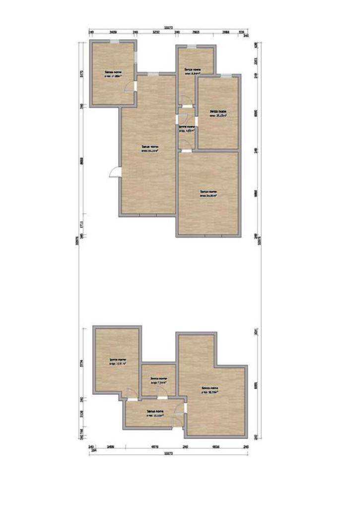
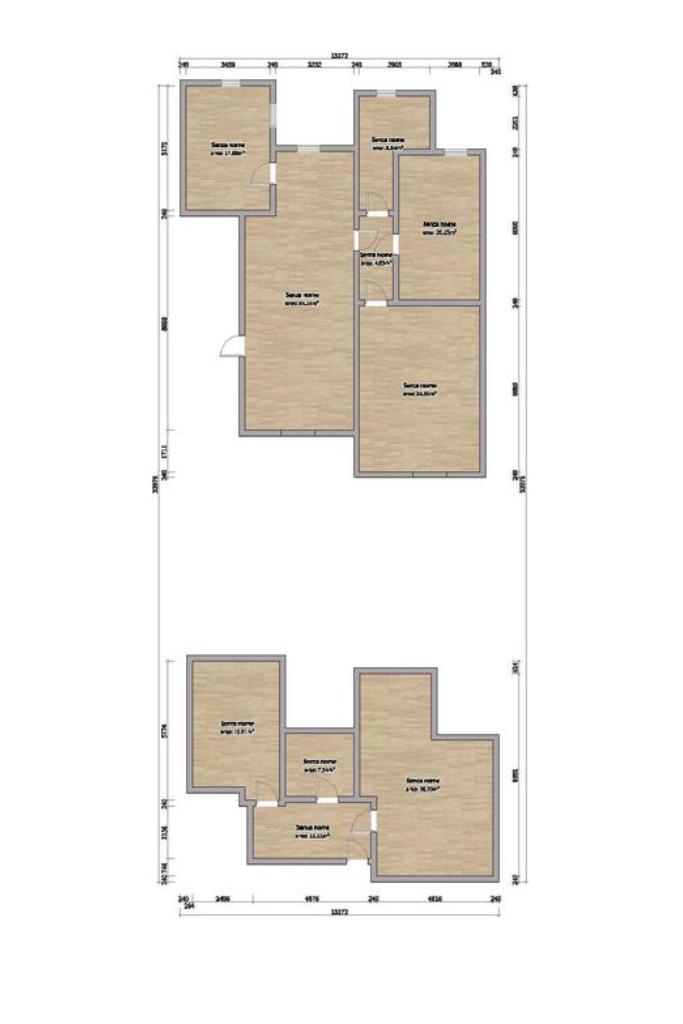
L’appatamento, con pavimentazione uniforme in parquet, dispone di un ingresso che si apre su una grande zona giorno ben distribuita, collegata alla cucina abitabile; entrambi gli ambienti dispongono di porta-finestra con accesso diretto al balcone che offre una vista su Superga.
Sul medesimo livello troviamo due camere da letto ed un bagno finestrato dotato di vasca.

Dal soggiorno una scala conduce al piano soppalcato, dove si sviluppa un’ulteriore camera da letto, un secondo bagno finestrato con box doccia, un pratico angolo studio e un comodo ripostiglio.

Mostra tutto

Nelle vicinanze

Trasporto pubblico Trasporto pubblico
Monte Grappa
Monte Grappa
1,0 Km
Rivoli
Rivoli
1,1 Km
stazione di Torino Porta Susa
stazione di Torino Porta Susa
2,1 Km
Genola
Genola
220 m
Trapani
Trapani
320 m
Ricariche auto elettriche Ricariche auto elettriche
Bluetorino Fidia
1,6 Km
Bluetorino Risorgimento
1,7 Km
RSA Grangia - Via Ada Negri | Duferco
1,7 Km
Bluetorino Politecnico
1,9 Km
Bluetorino Porta Susa FS
2,1 Km
Scuole Scuole
ITAS Santorre di Santarosa
240 m
Scuola Secondaria Statale di Primo Grado "Giuseppe Perotti"
400 m
Scuola Primaria "Arturo Toscanini"
490 m
Scuola Primaria "Giovanni Fattori"
760 m
Istituto Professionale per Industria e Commercio "G.Plana"
800 m
Farmacia Farmacia
Gillone
230 m
Farmacia
260 m
Comunale 7 - Afc
350 m
Sburlati
440 m
Busatti Borgo San Paolo Sas
540 m
Ospedali Ospedali
Ospedali
920 m
Ospedale Martini - Emergency
950 m
Ospedale Martini
970 m
LARC
1,8 Km
Ospedale Maria Vittoria
2,2 Km
Supermercati Supermercati
Jolly Crai
310 m
Mercatò
330 m
MD
390 m
In's
560 m
Ekom
740 m
Negozi Negozi
Panificio Marchisio
270 m
Pastificio Federico
410 m
Bartolini Anna Latteria
420 m
Gastronomia da Marinella e Fernando
570 m
Il Laboratorio dei Sapori
710 m
Bar Bar
Spritz Cafè
230 m
Bar
290 m
Bar Sport
800 m
Discobar Il Scoppiato
840 m
Bar Miami
910 m
Ristoranti Ristoranti
Osteria Novecento
80 m
Berberè
140 m
Pizzeria Silvestro
230 m
Pizzeria +39
300 m
Le ramine
300 m
Mostra tutto

Caratteristiche

Rif.:
61144627
Piano:
6 di 7 con ascensore (ultimo Piano)
Balconi:
1
Camere da letto:
3
Arredamento:
Completo
Condizionamento:
Assente
Mostra tutto
Prezzo Prezzo
€ 863 / mese
Spese annue Spese annue
€ 2.400

Classe Energetica

F
F
F
F
F
F
F
F
F
EP globale non rinnovabile:
138.33 kW h/m² anno
EP globale rinnovabile:
10.98 kW h/m² anno
EP invernale del fabbricato:
EP estiva del fabbricato:
Anno di costruzione:
2000
Riscaldamento:
Autonomo
Tipo impianto:
A radiatori
Tipo alimentazione:
Metano

Ti interessa visionare l'immobile?

Fissa un appuntamento  Fissa un appuntamento

Richiedi informazioni

Clicca su Leggi per aprire l'informativa
* Questi campi sono obbligatori
Affiliato
Sp1 Real Estate Sas
Via Monginevro, 94/A 10141 Torino (TO)

Il nostro staff


  • Lorena Chiaramonte
    Coordinatrice

  • Samuele La Tona
    Affiliato
Via Monginevro, 94/A 10141 Torino (TO)
Zona: San Paolo
Mostra su mappa
Orari: LUNEDI'-VENERDI' 09:00-12:30/15:00-20:00 SABATO 09:00/12:30
Affiliato
Sp1 Real Estate Sas
Via Monginevro, 94/A 10141 Torino (TO)

2025 Tecnocasa Franchising S.p.A. - P. IVA 08365160152 - Via Monte Bianco 60/A 20089 Rozzano (MI). Ogni agenzia ha un proprio titolare ed è autonoma. Privacy policy | Policy utilizzo | Cookie policy